Căn hộ
Chủ đầu tư:
Ms Quỳnh Anh
Địa chỉ:
Chung cư Sala Sarina, Khu đô thị Sala, Q2, TPHCM
Năm bắt đầu:
2019
Mô tả:
Thiết kế & Thi công nội thất căn hộ
Căn hộ 3 phòng ngủ được thiết kế theo phong cách hiện đại với tông màu trắng đen
Hotline / Zalo: 0909 221 694
can-ho-sala-sarina-q2
Phòng khách căn hộ
can-ho-sala-sarina-q2
Phòng khách căn hộ
can-ho-sala-sarina-q2
Phòng khách căn hộ
can-ho-sala-sarina-q2
Khu vực bếp & đảo bếp & bàn ăn 
can-ho-sala-sarina-q2
Khu vực bếp & đảo bếp & bàn ăn 
can-ho-sala-sarina-q2
Phòng kho
can-ho-sala-sarina-q2
Phòng kho
can-ho-sala-sarina-q2
Phòng ngủ Master
can-ho-sala-sarina-q2
Phòng ngủ Master
can-ho-sala-sarina-q2
Phòng ngủ nhỏ
can-ho-sala-sarina-q2
Phòng ngủ nhỏ
can-ho-sala-sarina-q2
Phòng làm việc
can-ho-sala-sarina-q2
Phòng làm việc
can-ho-the-golden-river
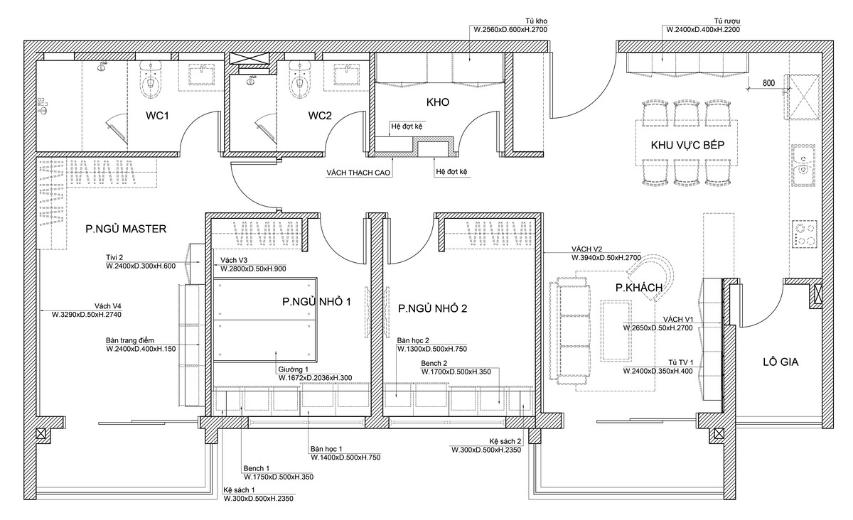
Mặt bằng căn hộ