Căn hộ
Chủ đầu tư:
Mr Phúc
Địa chỉ:
Chung cư Sunrise Cityview, Q7, TPHCM
Năm bắt đầu:
2018
Mô tả:
Thiết kế & Thi công nội thất căn hộ
Căn hộ 3 phòng ngủ với thiết kế tối giản thích hợp cho chủ đầu tư có mục đích đầu tư cho thuê
Hotline / Zalo: 0909 221 694
can-ho-sunrise-cityview-q7
Phòng khách căn hộ
can-ho-sunrise-cityview-q7
Phòng khách căn hộ
can-ho-sunrise-cityview-q7
Phòng khách căn hộ
can-ho-sunrise-cityview-q7
Khu vực bếp nối liền với phòng khách
can-ho-sunrise-cityview-q7
Khu vực bếp nối liền với phòng khách
can-ho-sunrise-cityview-q7
Khu vực bếp nối liền với phòng khách
can-ho-sunrise-cityview-q7
Khu vực bếp nối liền với phòng khách
can-ho-sunrise-cityview-q7
Phòng ngủ Master
can-ho-sunrise-cityview-q7
Phòng ngủ Master
can-ho-sunrise-cityview-q7
Phòng ngủ Master
can-ho-sunrise-cityview-q7
Phòng ngủ nhỏ 1
can-ho-sunrise-cityview-q7
Phòng ngủ nhỏ 1
can-ho-sunrise-cityview-q7
Phòng ngủ nhỏ 2
can-ho-sunrise-cityview-q7
Phòng ngủ nhỏ 1
can-ho-sunrise-cityview-q7
WC chung
can-ho-sunrise-cityview-q7
WC Master
can-ho-sunrise-cityview-q7
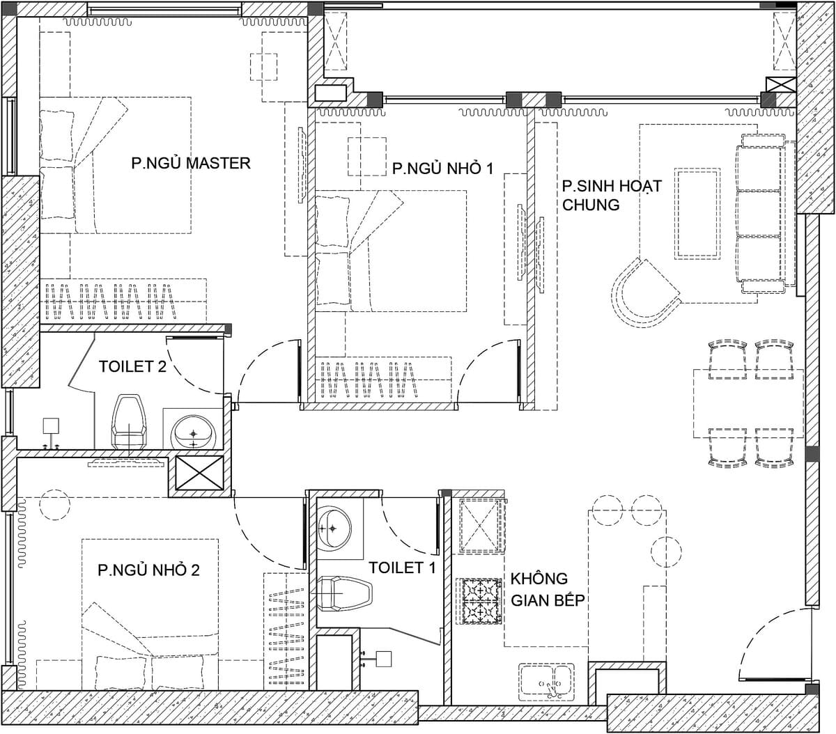
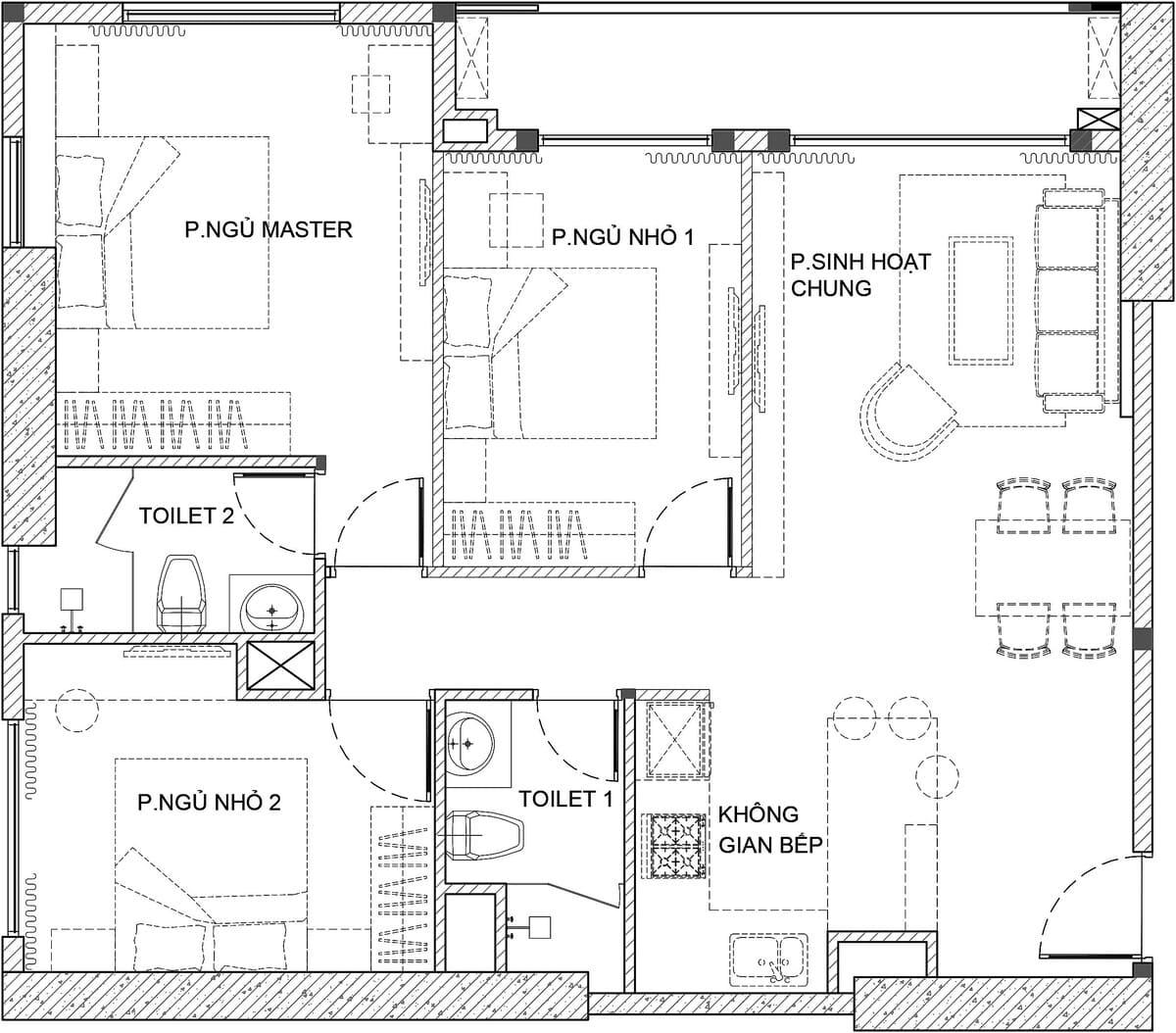
Mặt bằng căn hộ