Nhảy đến nội dung
DESIGN & BUILD - KIẾN TRÚC & XÂY DỰNG & NỘI THẤT
User account menu
Đăng nhập
Main navigation
Trang chủ
Về chúng tôi
Dự án
Cẩm nang
Catalogue
Liên hệ
Main navigation
Trang chủ
Về chúng tôi
Dự án
Cẩm nang
Catalogue
Liên hệ
User account menu
Đăng nhập
Breadcrumb
Nhà
DỰ ÁN
Căn hộ New City HA.16.01
Căn hộ
Chủ đầu tư:
Ms Hà
Địa chỉ:
Căn hộ HA.16.01, Chung cư New City, Q2, Tp. HCM
Năm bắt đầu:
2018
Mô tả:
Thiết kế & thi công nội thất căn hộ
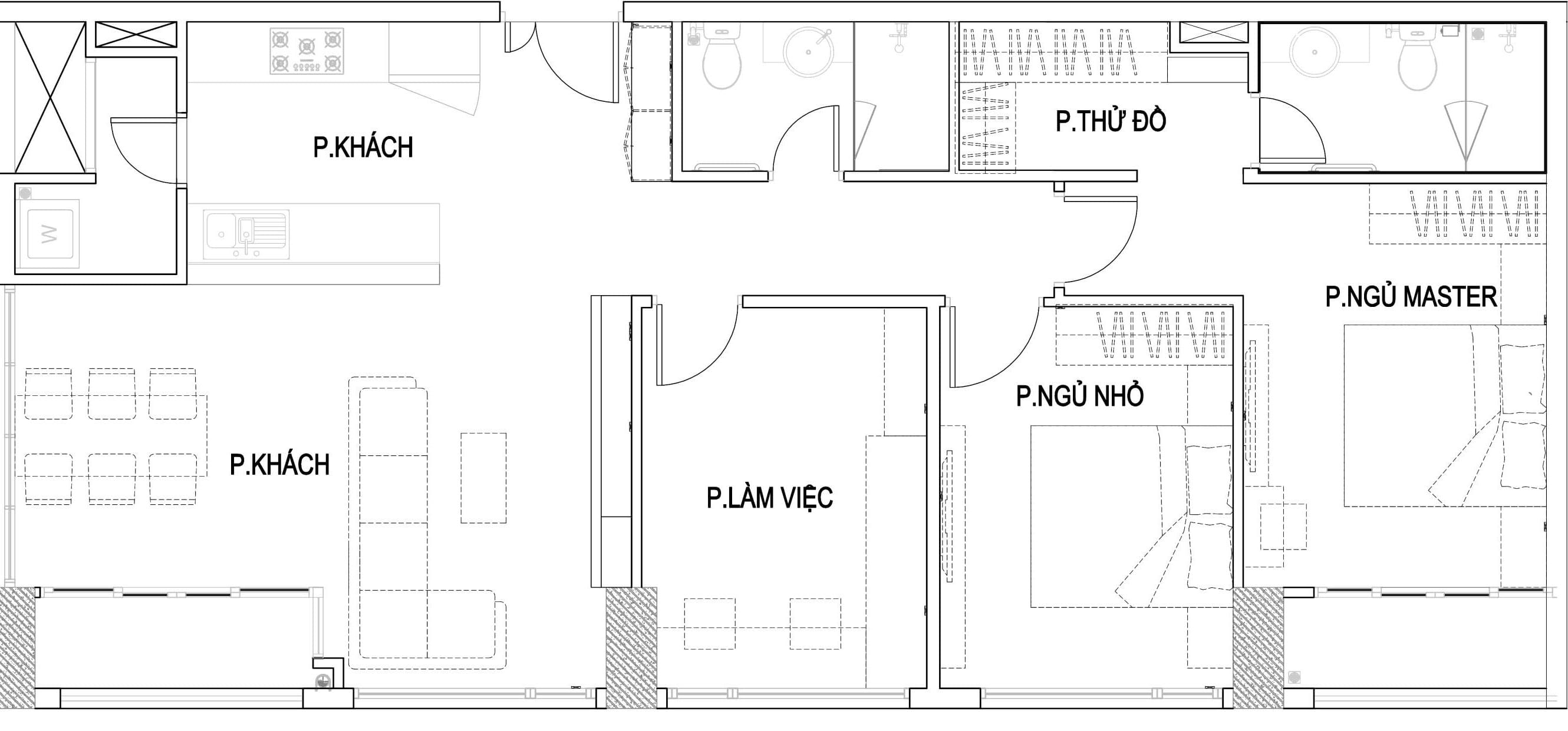
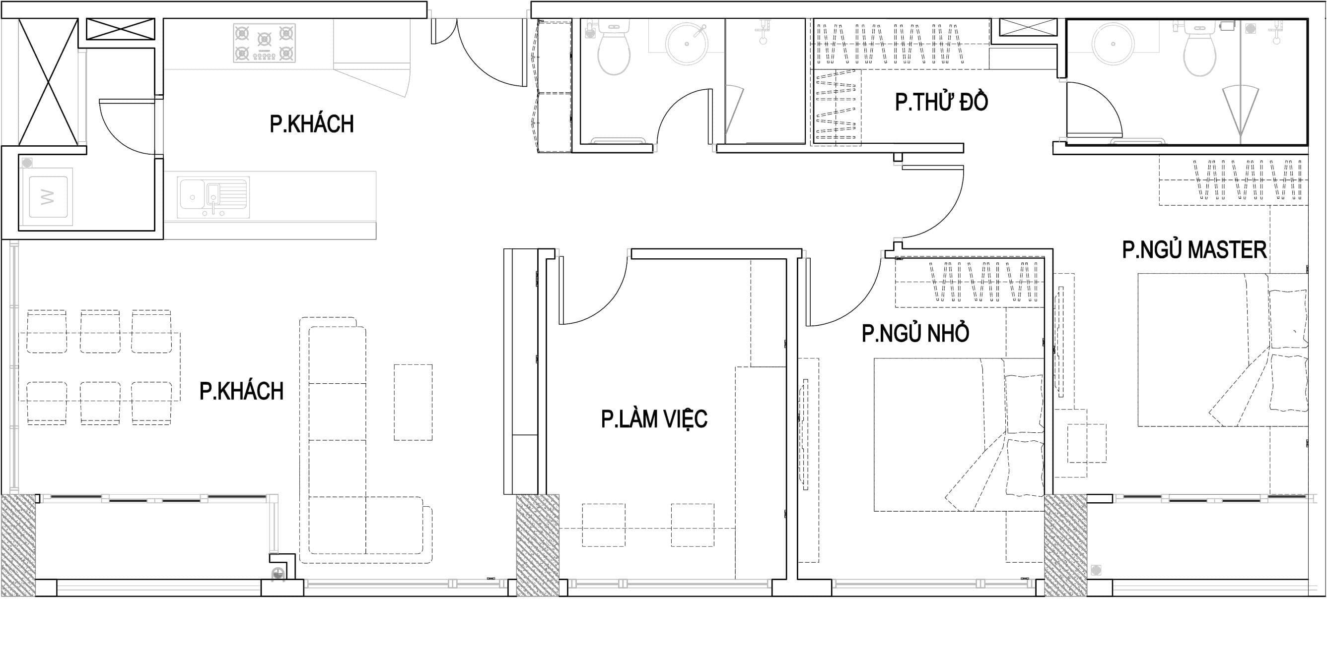
Căn hộ quy mô gồm phòng khách & bếp & 3 phòng ngủ
Hotline / Zalo: 0909 221 694
Mặt bằng căn hộ
Phòng khách
Phòng làm việc
Phòng ngủ nhỏ
Phòng ngủ Master
Phòng Closet